Protection for heating, ventilation and air-conditioning systems
Heating, ventilation and air-conditioning (HVAC) systems are the heart of a building's functionality. If the HVAC technology fails, the effects on operation, hygiene and asset preservation are immediate.
Secure your projects by factoring in surge protection at an early stage and avoid unnecessary costs. We are here to support you as your partner.
The risks:
HVAC systems consist of widely distributed, networked components. Overvoltages can enter the system via control and communication lines and power supply cables.
The consequences:
Room temperatures can no longer be regulated and air quality declines. Technical equipment can overheat and processes can stall.
Our solution:
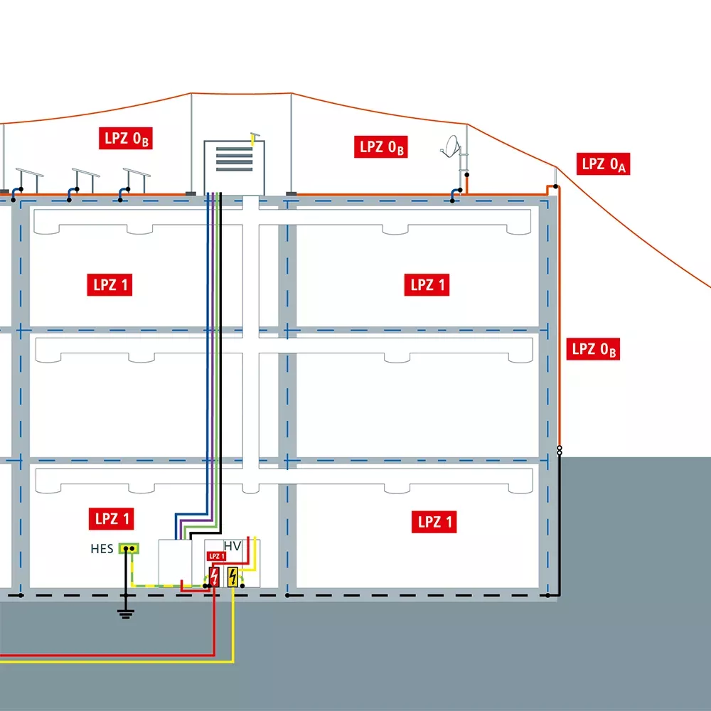
Tailored protection for HVAC technology: Individual protective devices are not sufficient – only the combination of measures for power supply, information technology and equipotential bonding offers reliable protection. Our concept combines graduated surge arresters, protection for all control and communication interfaces and consistent earthing and equipotential bonding structures that keep your systems and equipment running safely and efficiently.

Advantages for your projects
A comprehensive protection concept ensures that your heating, ventilation and air conditioning systems work reliably – without unscheduled downtimes or expensive consequential damage. Stable climate and air quality control, plus optimised energy flows, ensure maximum efficiency and comfort. A clear protective structure provides security for new and existing buildings, while also creating a sound basis for decision-making for sustainable and economical building operation.
Safely standard-compliant
Our solutions and products comply with IEC 61643-11 and Part 21. Learn more about the requirements and how you can meet them with our solutions. Further specifications on the safety of people, animals and technology are contained in the IEC 62305 series of standards, as well as national standards, regulations and laws.
